Limestonecoastrealestate

powered by Open2view.com

33 Coorong Waters Drive

South East
3
1
N/A
N/Asqm
N/Asqm
33 Coorong Waters Drive South East
proudly marketed by
Elders Real Estate Murray Bridge
Immerse Yourself in the Serenity
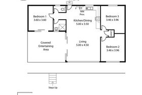
Nestled in the heart of one of South Australia's most breathtaking natural landscapes, this charming 8 years young timber-framed home offers a rare opportunity to experience the serenity and beauty of the Coorong every single day. Set on a generous 1,206sqm allotment, the property enjoys uninterrupted panoramic views over the iconic waterways - a haven for birdlife and tranquility. Step inside to discover an inviting three-bedroom residence designed for relaxed living. The open-plan kitchen, dining, and lounge area provides the perfect setting for family gatherings or quiet evenings, while the split system air conditioning ensures year-round comfort. Thoughtfully equipped with gas hot water and cooking facilities, this home blends modern convenience with country charm. Entertain family and friends in the outdoor area as you soak up the peaceful surroundings and fresh coastal air. The property also features a handy garden shed, a reliable private water scheme complemented by 22,500 litres of rainwater storage, and a 2KVA battery and solar power system for emergency power and peace of mind. Perfect as a permanent residence, holiday retreat, or investment, this unique property captures the essence of coastal living by the Coorong - a lifestyle defined by natural beauty, space, and serenity. Opportunities like this are rare; embrace the chance to call this slice of paradise your own. Contact John Robinson on 0409 609 457 or Ali Bolt on 0437 290 698 for more information. Disclaimer: We have in preparing this information used our best endeavours to ensure that the information contained herein is true and accurate but accept no responsibility and disclaim all liability in respect of any errors, omissions, inaccuracies, or misstatements that may occur. Prospective purchasers should make their own enquiries to verify the information contained herein. Elders Real Estate RLA62833
Question
Location
Upload by Jody Lorraine (Photography & Floorplans)
Southern Adelaide
This property was photographed by
Jody Lorraine (Photography & Floorplans)
0412 959 940